Preiswertes Wohnen an zentraler Lage

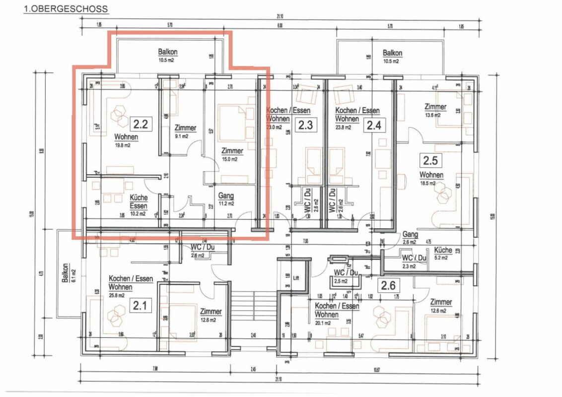
3-Zimmer-Wohnung mit ca. 65 m² Wohnfläche

  • Neuwertige Küche, Fenster und Lamellenstoren
  • Frisch saniertes Badezimmer
  • Zentrale Lage
  • Einkaufsmöglichkeiten in unmittelbarer Nähe

Optional: Einstellplatz für CHF 110.-/Monat

Eigenschaften

Balkon Bergsicht Garage Gepflegt Kabelfernsehen Kinderfreundlich Lift Sonnig

Angebot

Nettomiete CHF 1'320.– / Monat
Nebenkosten: CHF 170.– / Monat
Verfügbar ab: 1. Juli 2026

Immobilie

Referenz fk2031.OG
Adresse Schönfeldstrasse 20
9470 Buchs SG
Schweiz
Etage 1
Etagen 6
Badezimmer 1
Zimmer 3
Bruttowohnfläche 65 m2
Baujahr 1983

Dokumente

Grundriss

Distanzen

Schönfeldstrasse 20, 9470 Buchs SG, Schweiz

Distanzen

Kontakt

Prefera Immobilien AG
Grossfeldstrasse 40
7320 Sargans
Schweiz

Telefonnummer +41817204848

Ansprechpartner

Leonie John

Direktnummer 081 720 48 50

Bitte alle Felder ausfüllen.

Weitere Objekte

Mieten

Standort: Unterterzen
Typ: Tiefgaragenstellplatz

Mieten

Standort: Buchs SG
Typ: Wohnung

Mieten

Standort: Bad Ragaz
Typ: Wohnung
Kontakt